行业知识

DDV阀介绍及其应用

2024-08-05 16:43:44 江南官方站网页版_江南(中国)

DDV阀介绍及其应用

概述

200MW以上机组配备的DEH产品主要以高压抗燃油全电调为主,随着电力市场的发展,电厂控制的自动化程度不断提高,小机组汽机控制系统的自动化程度在不断地提高。而小机组投资相对较少,低压纯电调改造方案既解决了投资地问题,又满足了电厂自动化控制的要求。2001年开始GE新华为了满足用户的要求,设计采用了一种以直线马达驱动的电液转换器(DDV阀)为电液接口的低压透平油纯电调系统。下面就DDV阀的结构、特点及结合顶目的应用来说明


DDV阀液压结构

DDV阀主要有以下几部分组成:永久磁铁,轴承,控制信号线圈,对中弹簧,衔铁和衔铁端盖等,如图1。

图片关键词

DDV阀所采用的线性力马达是永磁式差动马达,永久磁铁可为磁场提供部分所需的磁力,因此,这类力矩马达较比例电磁铁所需的电流要小。线性力矩马达可在中位产生左右两个方向的驱动力,推动阀芯产生两个方向的位移,驱动力及阀芯位移与输入的电流大小成正比。


阀在输出电流的过程中必须克服由于大刚度的对中弹簧所引起的弹簧刀和一些外力。阀芯存复位的过程中,对中弹簧力加上马达的输出力一起推动阀芯回复零位,使得阀芯对油液污染的敏感度减弱,线性力马达在中位附近仅需要输入一个很小的电流。

图片关键词

DDV阀共有5个油口,如图2分别为T,A,P,B,Y回油Y和T相连,P为DDV阀的入口油压,在低压电调控制系统中,该油压来自汽机主油泵出口油压,A为电液转换器输出的控制油,作为控制油压来控制油动机滑阀下腔的油压,T为回油,在我们实际低压油DEH控制系统中,由于控制的是油动机滑阀的油压,DEH伺服卡通过调整DDV阀控制信号大小来调节使控制油压始终保持恒定,所以B口一般不用,DDV阀在系统中一般使用在控制油压是定压的系统中,通过指令和反馈的比较来控制滑阀的动作,始终保持输出控制油压A出口的稳定。


四通阀功能

1.阀口A和B流量控制口(节流控制)

2.若阀口T的压力P>5Mpa时,则阀口Y必须单独接回油箱

3.用作三通时,阀口A或B须堵死

4.阀芯为零开口,另有1.5%一3%或10%重叠量的阀芯可供选择


DDV阀电气特性

DDV阀的电气控制及接口部分原理如下:阀内电路包含了用于驱动线性马达的脉宽调制(PWM)和控制阀芯位移的电路,电路板按IP65防护等级安装在阀体内,它为伺服阀和DEH的阀位控制卡(VPC)建立了接口,MOOG D634阀需外部提供接口电路24VDC工作电源,但当电源切断时,在不需外力作用的情况下阀内的阀芯对中弹簧可将阀芯回复到中位,将与阀芯位移成正比的电信号输入阀内放大电路,此信号转换成一个脉宽调制电流作用在线性力马达上,力马达产生推力推动阀芯产生一定的位移,同时激励器激励阀芯位移传感器产生一个与阀芯位移成正比的电信号,该信号与输入指令信号比较,直到阀芯位移达到所需值,阀芯位移偏差信号为零,最后得到的阀芯位移与输入信号成正比。

MOOGD634/633输入信号分为电压输入和电流输入两种方式。


DDV阀的特点:

1.良好的控制性能,直动式伺服阀有很高的阀芯位置回路增益,稳定性和动态响应性能非常好

2. 可监视阀芯位移,便于系统故障分析

3.中位故障保险功能

4. 低功耗,线性力马达比电磁铁的功耗低,阀芯在零位时几乎不消耗功率

5.电气零位调节,电气调零可补偿因负载变化所引起的零漂


DDV阀在低压电调系统中的使用

GE新华DEH-V系统不仅与其配套的低压透平油纯电调液压系统接口,还与多家主机厂的低压透平油纯电调液压系统实现接口,接口方式一般采用-l0mA~+l0mA或-lOV DC~+l0V DC的控制信号,在低压纯电调控制系统中DDV阀常用MOOG D634和MOOG D633两种,这两种DDV阀的区别只是流量不同,对电气控制信号来说没有区别。在DEH-V系统中与DDV阀实现接口采用的端子板是VPC-TB(C2908469),输出控制信号是-40mA~+40mA。当DDV阀选用电压输入时,DDV阀内部BX和BY是断开的,系统应用时需在VPC-TB输出端子上并联2500的电阻,转换成-l0V DC~+lOV DC的输出电压,实际使用中由于受端子板输出功率的影响,输出电压可能不到+/-l0V DC,这对控制系统的正常运行不造成太大影响,对瞬间动态响应稍有点负作用;当DDV阀选用电流输入时,BX和BY短接,DDV阀输入控制电流通过200Q电阻后接地,当控制信号出现负电流后出现输出负值突增的情况,引起调门晃动的现象,所以针对这种接口方式,VPC-TB与DDV阀接口时,一组控制信号接(D+,E-)的同时,在另一组控制信号的输出端并联一个250Ω的电阻,避免控制信号直接接地。这样有效地避免了阀门晃动地情况。

图片关键词

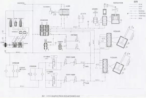
图3是具有一段可调整抽汽的哈汽型12MW汽轮机低压透平油纯电凋液压系统图。纯电凋系统的电气部分采用DEH-V型控制器,控制器与液压系统的接口部件采用DDV阀。该机设有主汽门一只,采用开关型自动关闭器,受安全油控制。一只高调油动机及一只中压油动机各配置一只DDV阀控制。


1、该纯电调液压系统改造要点及配置方式如下:

调节部分:

● 哈汽型汽轮机调节系统的油动机采用的是液压反馈断流式双侧进油油动机。为适配DDV阀控制,将油动机的液压反馈取消,油动机主要由错油门和油动机活塞两部分组成。

● 在油动机活塞杆上增设双冗余LVDT,作为油动机行程的反馈定位用。

● 在每只油动机的脉动油路上分别设置可调节流阀,用以调整油动机的错油门偏置,使当DDV阀失电时,油动机能自动关闭。保安系统部分:

保安系统为哈汽型汽轮机的传统结构。另外还设置了启动滑阀,可遥控操作启动阀进行挂闸,建立安全油,开启主汽门。除此之外,还增设如下部件:

● 为每只高、中压油动机增设双联OPC电磁阀,以限制甩负荷动态超速。

● 增设冗余双联AST电磁阀,它接受机组电气保护信号,当任何一只电磁阀动作泄附加保安油时,通过危急遮断滑阀动作泄安全油及高、中压油动机脉动油,使机组停机。

● 在安全油路上设压力开关2只,给DEH信号,用于指示及联锁保护。

图片关键词

2、DDV阀电液伺服控制系统工作原理

采用DEH-V数字式控制器突出的优点是能利用计算机的复杂算法,实现功率、抽汽压力的解藕控制,即保证调节的自治性能。调节过程有如下二种方式:

● 当电功率变化时,DEH接受功率指令信号,通过解藕后,发出阀位指令信号,经伺服放大器放大后,由DDV阀将电信号转换成液压信号,控制高、中压油动机同方向开或关,来增大或减小汽轮机的功率,而使抽汽量不受影响。

● 当中压抽汽量变化时,例如:中压抽汽量增加,使中压抽汽压力降低时,DEH接收调节指令,经解藕后,发出阀位指令信号,经伺服放大器放大后,通过高压DDV阀控制高压油动机开大高压调节汽阀通过中压DDV阀控制中压油动机将中压调节汽阀(或旋转隔板)关小,使中压抽汽量增加,而不影响汽轮机的功率。如中压抽汽量减小,则调节过程相反。这样,就可以方便而准确地实现调节自治性。 


3、DDV阀调试

DDV阀指令信号为±1OmA,在DDV阀无信号输入时,调整节流阀,使控制油动机的脉动油压Pmo比油动机错油门在中间平衡位置时的脉动油压值Pm小0.O5MPa左右,即Pmo=Pm-O.05,这样,错油门在关的方向就有一定的偏置,当DDV阀失电时,可使油动机能自动关闭,以确保机组安全。然后进行伺服系统静态和动态调试。 


4、调试时发生故障处理

● 进行油动机特性试验时,控制油压稳定,油动机产生不规则的摆动,一般是油动机滑阀发生卡涩,应将油动机解体清洗。

● 进行伺服系统闭环试验时发生油动机摆动,如DDV阀工作正常,可适当调整VPC卡中Pl加以校正,直至油动机稳定为止。

● DDV阀输入电流信号后,脉动油压不稳定,产生油动机摆动。可检查定节流孔是否堵塞,使供油流量不足引起摆动。

● 提高系统油质,确保DDV阀不卡涩。

目前DDV阀在小机组的汽机控制系统中用得较厂泛,弄清对象的特性,选用正确的接线方式,静态调整时确保机组在各种工况下的安全性,机组运行后维护好系统的油质,保证系统长期稳定的运行,低压纯电调控制系统也是一种比较经济实用的选择。

TAG: DDV阀
首页
产品
新闻
联系